思明实业在行业内拥有13年的项目经验,从几千平到上万平都有案例,一站式设计装修没有中间商,潮玩馆、儿童乐园、淘气堡,设计服务认准思明实业。
在儿童乐园同质化竞争的当下,乌鲁木齐的“卡乐奇宝贝世界”以其4800平米的体量与精密的商业设计,意图树立地区新标杆。本文将从空间规划、营收模型与用户体验三个维度,深度剖析其如何将“梦想”转化为可持续的商业模式。

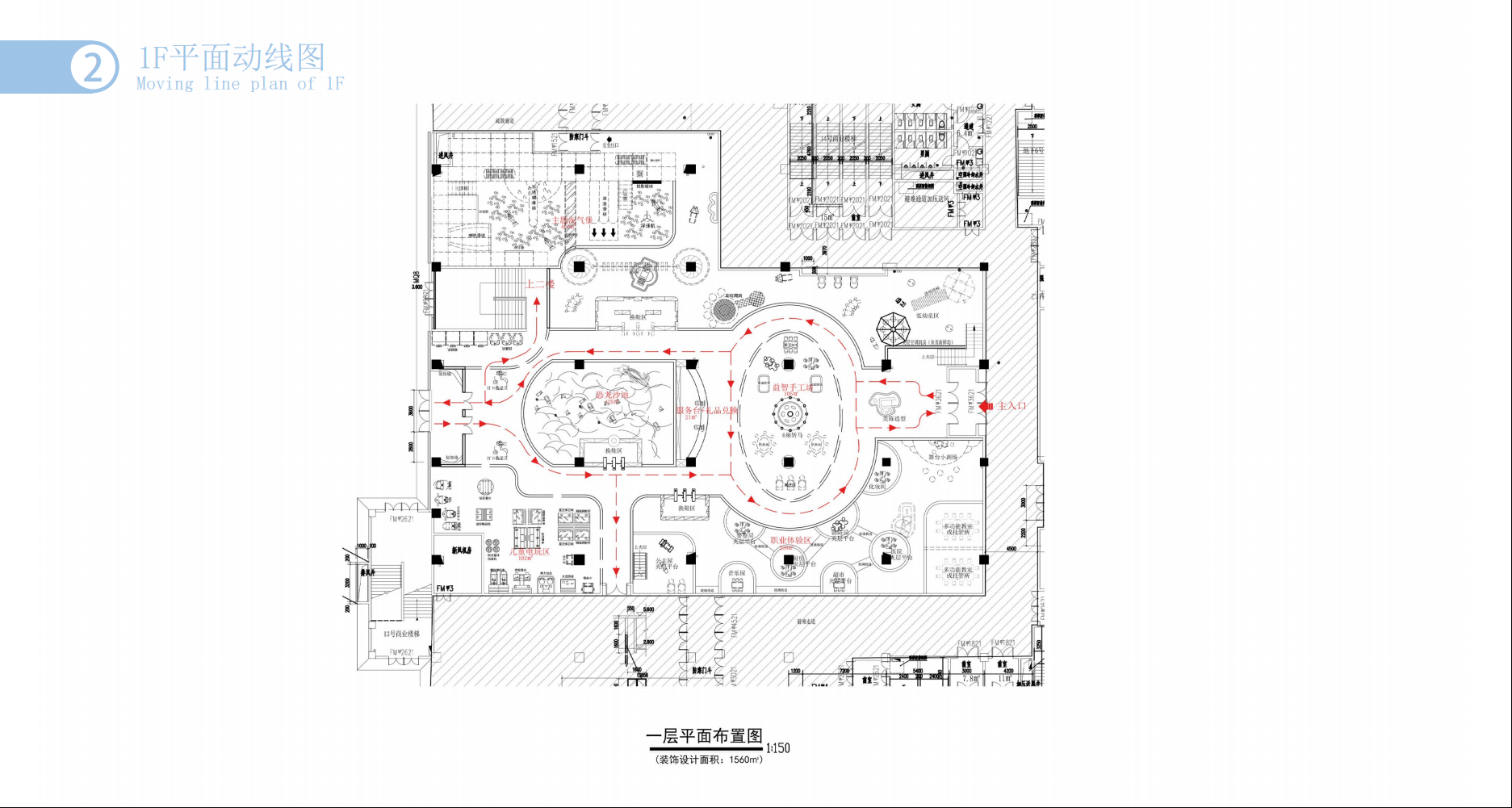
战略定位:超越“游乐场”,定位“成长学习中心”
“卡乐奇宝贝世界”首先在概念上进行了升级,将自己定义为“成长学习中心”。这一定位使其超越了传统游乐场的范畴,精准切合了当代家长“寓教于乐”的核心诉求,为更高的客单价和会员粘性奠定了基础。

空间规划与营收模型:“磁石”效应与“闭环”动线
中心化布局,聚集人气: 将服务台与益智手工坊置于乐园中心,形成强大的“人气磁石”。此举不仅能有效汇集客流,更为高利润的二销项目(如手工课程)创造了最佳的展示与销售点位。

核心项目融合,创造多次消费: 将考古沙池与服务台进行椭圆形一体化设计,是本案的一大亮点。沙池作为常青项目,自带高粘性,将其与主服务台绑定,既引导了初始客流,又为电玩、淘气堡等其他收费项目提供了天然的导流入口,巧妙构建了消费闭环。


功能分区明确,提升体验效率: 职业体验、主题淘气堡、电玩区等功能区以半封闭式空间呈现,既保证了各区域的独立主题体验,又便于家长监护。明确的动线减少了游客的决策时间,提升了整体游玩效率与安全性。


设计赋能:主题沉浸与细节留人
视觉营销: 梦幻童趣的主题风格与明快的色彩,第一时间吸引儿童。而潮玩运动馆的时尚设计,则兼顾了陪同青少年的审美,扩大了客群覆盖面。

留人设计: 精心设置的家长休息区、舞台表演区,不仅能显著延长家庭的停留时间,更能通过创造“休息-观看-参与”的节奏感,提升客户满意度,从而间接提升二次消费几率。

卡乐奇宝贝世界的设计,展现了一套成熟的商业逻辑:通过中心磁石(服务台&手工)引流、高粘性项目(沙池)锁客、多功能区(职业体验/淘气堡)消耗时长、二销与电玩直接变现,最终形成一个能够自我循环的商业生态系统。这对于计划进军或升级大型乐园的投资者而言,具有极高的参考价值。


















